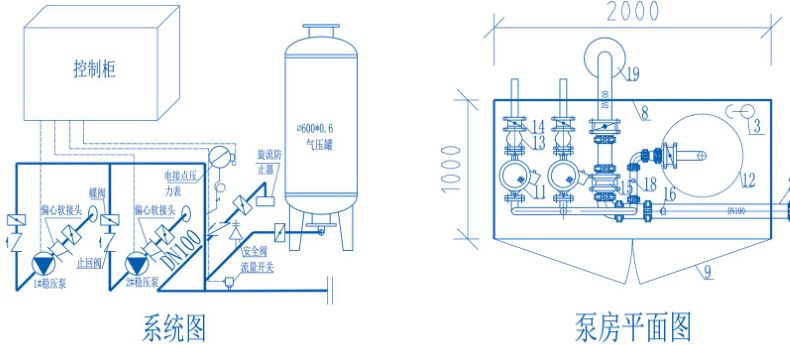
本產品是為了解決臨時高壓消防給水系統之高位消防水箱設置高度滿足不了該系統最不利點靜水壓力要求的需要,設計了為消防專用的箱泵一體化消防穩壓設備。其由不銹鋼水箱(裝配式或焊接式)、泵房、 旋流防止器、隔膜式氣壓罐、水泵、電控箱、儀表、管道及附件等組成。

設備設計原理:
1)使消防給水管道系統最不利點始終保持消防所需壓力;
2)使氣壓水罐內始終儲有不小于150L消防水量。利用氣壓水罐所設定的P1、P2、PS1. PS2運行壓力, 控制水泵運行工況,達到穩壓的功能。P1為最不利點消防所需壓力(MPa) , P2為消防泵啟動壓力所對應的穩壓設備壓力(MPa) , PS1為穩壓泵起泵壓力(MPa) , PS2為穩壓泵停泵壓力(MPa),箱體保證初期補救用水量。


運行控制全過程:
根據計算求得消火栓系統或自動噴水滅火系統中最不利點所需的消防壓力P1,作為氣壓水罐的充氣壓力。通過計算所選定的氣壓水罐規格及ab值,求得P2,并設定PS1=P2+(0.02~0.03), PS2=PS1+(0.05-0.06)。平時管道系統如有滲漏等泄壓情況,控制穩壓水泵不斷補水穩壓,在PS1、PS2(啟動停止)反復運行。一旦有火情,消防管道系統大量缺水,消防水箱出水管上流量開關閉合,啟動消防泵運行。

設備性能:
1) 本"設備”電控系統具有自動、手動功能,并與消防控制中心或消防泵房聯動。
2) 兩臺穩壓水泵一用一備,輪流工作,自動切換,交替運行。
3) 平時使消防管網處于高壓狀態,并保持罐內儲存一定水量,由于泄漏等原因,系統壓力下降到PS1時,1 號泵自動啟動,水壓上升至PS2時停泵,下次壓力又下降到PS1時,2號泵自動啟動,如此交替運行,使系統壓力始終保持在PS1和PS2之間。
4) —旦有火情發生,流量開關輸出信號自動啟動消防泵。
5) 具有就地顯示和遠程顯示正常液位以及高低水位報警功能。
6) 安裝周期短。
7) 節省空間,無需建泵房,節省投資。
8) 節能環保:該產品可二次利用和再生,完全符合國家環保標準規定,并且噪音小。
9) 維護檢修方便。

適用范圍:
本產品適用于多層高層建筑工程有穩壓設施要求的消火栓給水系統及濕式自動噴水滅火系統等各類消防給水系統。

設備咨詢:箱泵一體化消防穩壓供水設備
- * 聯系人:
- * 手機:
- 公司名稱:
- 郵箱:
- * 采購意向:
-
*
驗證碼:
-
- 箱泵一體化消防恒壓供水設備
- 消防水箱是我們日常生活中重要的消防設備,需要在火災發生的時候及時供水,因為安全尤其重要。南京米諾會根據工程項目中的各單個,…
-
- 箱泵一體化消防給水泵站(地埋式)
- 消防水箱是我們日常生活中重要的消防設備,需要在火災發生的時候及時供水,因為安全尤其重要。南京米諾會根據工程項目中的各單個,…
-
- 臥式單級消防泵
- 臥式單級消防泵適用于消防管道增壓送水。用途是輸送清水或物理化學性質類似于清水的其它液體進行增壓之用。臥式泵使用介質溫度不超…
17766075139
總部電話:17766075139
微信:17327734396
傳真:025-58601258
總部地址:南京市江北新區葛塘街道博富路27號

